Alambre

Maison contemporaine en 3D de nuit
Maison contemporaine en 3D de nuit
Maison contemporaine en 3D de nuit
Surface habitable120m2
Département37

Détails :

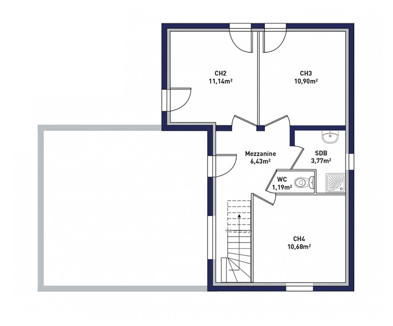
Maison contemporaine de 120 m². Salon-séjour avec cuisine semi-ouverte, et cellier accolé. Dégagement desservant 1 chambre, 1 WC et 1 SDB. A l’étage, mezzanine, 3 chambres, Sde et WC séparés

Certification Properméa

Fiche technique

AU REZ DE CHAUSSÉE :
Salon-séjour, cuisine, cellier, 1 chbr, 1 WC et 1 SDB.

ETAGE 1 :
3 chambres, 1 SDB, 1 WC.

Logo Pierre & Terre blancPierre & Terre construit la maison qui vous AIME.
Unique, Lumineuse, Saine et Durable.

Construisons la maison de votre vie en mode KeyZen.


30 Avenue de Bordeaux
BP 70124
37170 Chambray-lès-Tours
Tél. 02 47 42 61 00

Présent dans les départements du 37 et 49